231-237 George Town Road
Rocherlea TAS 7248
Contact Agent
Significant Industrial Holding
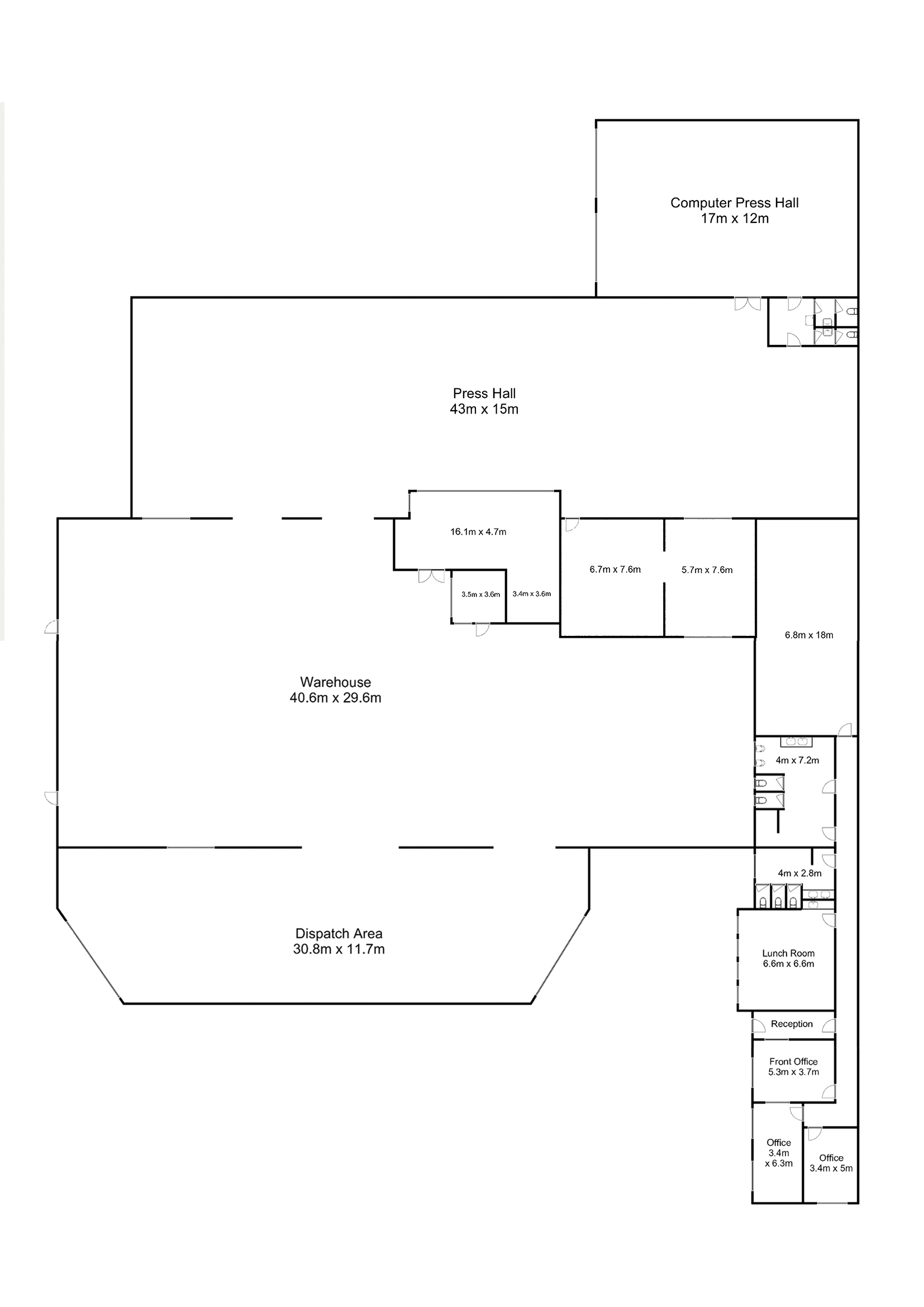
Elders Commercial are privileged to bring to market a significant industrial asset located on the busy commercial/industrial strip of George Town Road.Vacant Possession warehouse facilities of this size are rarely introduced to the Launceston marketplace. The property has previously housed the operations of ACM media’s Northern printing facility since 1991*, with the freehold now available for purchase.
Key Property Features:
- Large “Light industrial” zoned land holding of 5,763 sqm*
- Functional facility comprising 400 sqm* undercover drive-thru dispatch area with two rapid lift doors
- 2,032 sqm* of warehouse/press hall
- 221 sqm* of office/staff amenity
- 204 sqm* computer press hall/storage
- 74 sqm* shed with 4 roller doors
- 66 m* of high exposure frontage to George Town Road, with excellent signage opportunities for future occupants
- Abundance of onsite parking and hardstand with over 30 spaces available for staff and customers
- Secure fencing with 2 x electric gates and functional CCTV system providing added security benefits
- Fully equipped office space with multiple private rooms, staff amenity, lunchroom, male and female toilets & change room with end of trip facilities
An asset of this nature is likely to be highly sought after by both owner occupiers and investors with limited industrial stock available for sale or lease within the local market.
Please contact Fletcher Seymour or Rob Dixon for more information or to arrange an inspection.
*Approx.
Features
General Features
- Commercial Type: Industrial/Warehouse
- Building Area: 2,253sqm
Can I afford 231-237 George Town Road?
With access to the best on offer from 30 lenders and complete support and advice from pre-approval to settlement, you can trust an Elders Home Loans broker to find a quick and simple solution.
Get a Quote
Elders Real Estate Launceston
Enquire about 231-237 George Town Road, Rocherlea, TAS, 7248