Skip to content

16-30 Waverley Road

Waverley TAS 7250

Contact Agent

Light Industrial Land – City Fringe, Ready to Develop

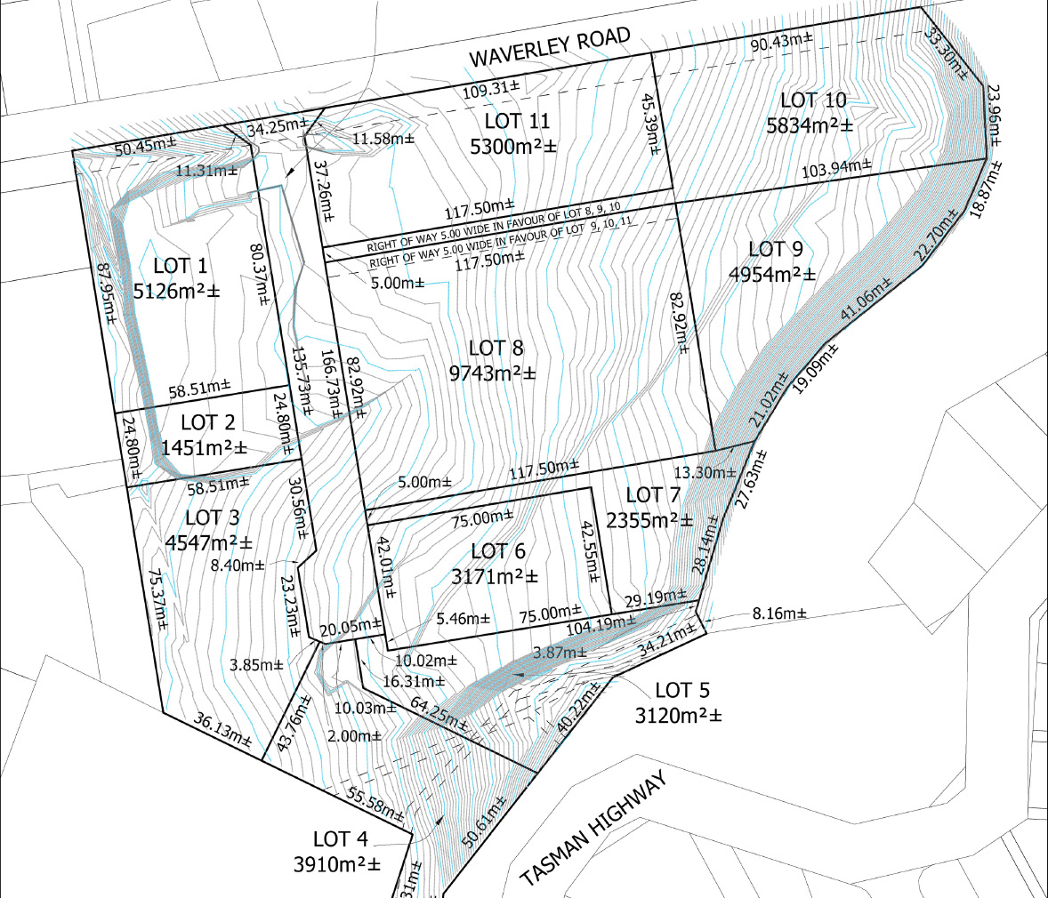
Elders Commercial is pleased to present two light industrial land parcels in the sought-after Waverley precinct. The level allotments provide scope for various development outcomes (STCA).

Key Highlights:

- Lot 1 - 5,126 sqm* & Lot 3 - 4,547 sqm* in size.
- Light Industrial zoning.
- Level, easily developable land.
- Excellent access to CBD and transport routes.
- Suitable for a variety of warehousing development.
- Adjoining a well-established industrial and commercial hub
- Good frontage to the sub-division road.

The property is for sale via Private Treaty with the following pricing indication:

Lot 1 - Offers over $975,000 + GST
Lot 3 - Offers over $865,000 + GST

Please contact Fletcher Seymour or Cale Ayres for more information.

Features

General Features

  • Land Area: 9,673sqm
  • Commercial Type: Land/Development
  • Building Area: 1sqm
  • Zoning: Light Industrial

Can I afford 16-30 Waverley Road?

With access to the best on offer from 30 lenders and complete support and advice from pre-approval to settlement, you can trust an Elders Home Loans broker to find a quick and simple solution.

Get a Quote

Elders Real Estate Launceston

Enquire about 16-30 Waverley Road, Waverley, TAS, 7250

Property guides and resources

Halloween at Home: Ideas for a Fun, Family-Friendly Fright Night

Once upon a time, Halloween in Australia was more of a passing…
Read more

Elders Real Estate Continues Its Give It Christmas Appeal for the Third Year

As the festive season approaches, Elders Real Estate is once again rallying…
Read more

Smart Home Automation Upgrades to Beat the Heat

As we begin to head into the summer months, homebuyers and homeowners…
Read more