Skip to content

48 Abbott Street

East Launceston TAS 7250

$42,000 + GST and outgoings

East Launceston Lease Opportunity

Elders Commercial is pleased to present a rare opportunity to lease a high-exposure, 'Local Business' zoned property in one of Launceston’s most affluent suburbs. Positioned on Abbott Street, East Launceston's main arterial road, this flexible and well-located property offers significant appeal to prospective tenants.

Key property features include:

- Premium location in East Launceston - walkable to shops, cafés and schools.
- Excellent frontage and signage exposure to Abbott Street.
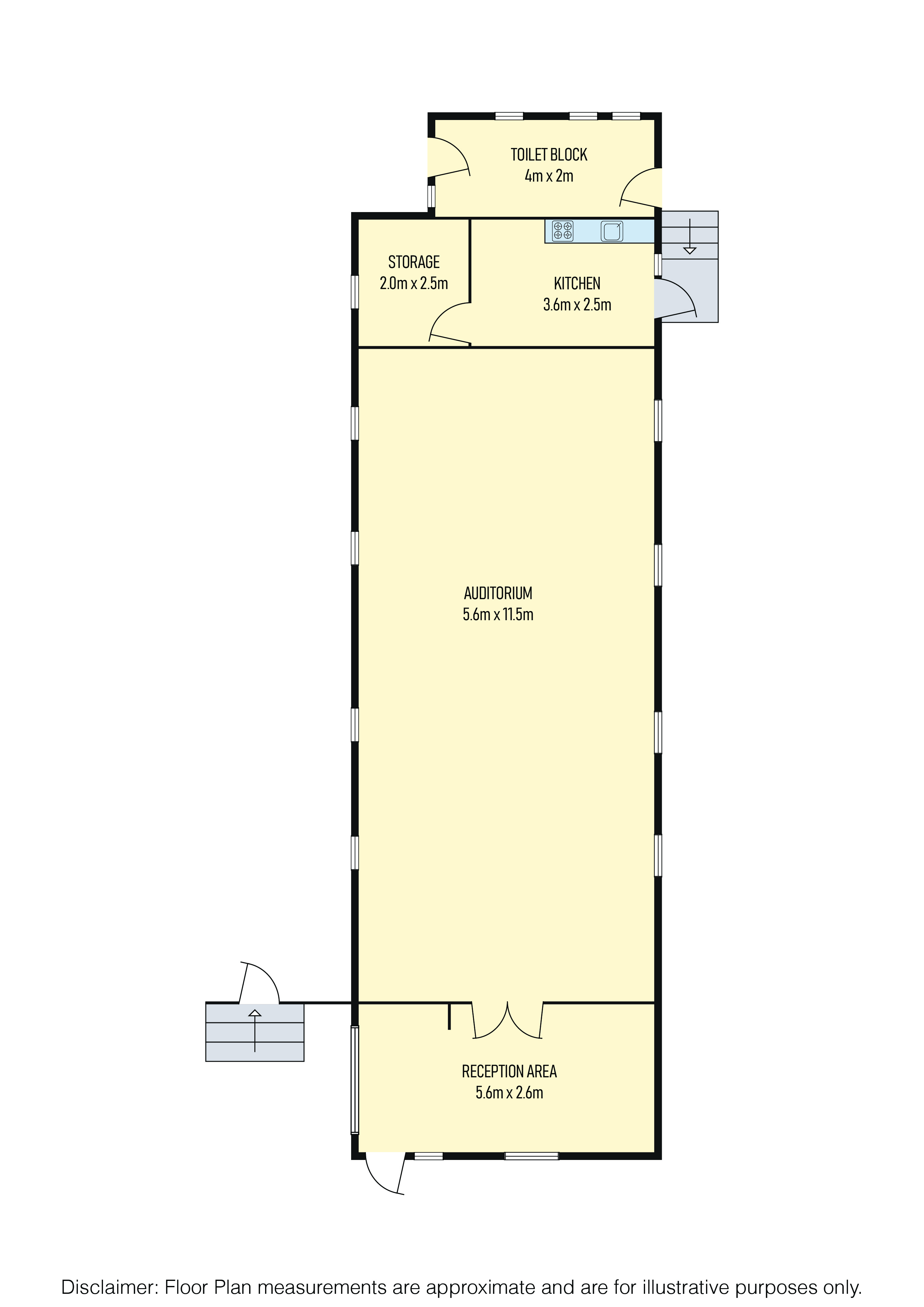
- Functional layout including entry foyer, expansive hall with high ceilings, and renovated kitchenette and bathroom facilities.
- Zoned “Local Business” under the Tasmanian Planning Scheme, offering broad commercial use potential.
- Ideally suited to office, professional services/consulting, medical, boutique retail or future redevelopment (STCA).
- Land area of 282sqm* with a total building area 110sqm*.

Please contact Fletcher Seymour or Rodney Rawling for more information or to arrange an inspection.

Features

General Features

  • Commercial Type: Offices
  • Building Area: 110sqm
  • Zoning: Local Business

Elders Real Estate Launceston

Enquire about 48 Abbott Street, East Launceston, TAS, 7250

Property guides and resources

Elders Shines at Real Estate Institute Awards

Elders Real Estate has had a sensational run at the 2025 Real…
Read more

Affordability and Lifestyle Making Gippsland a Destination in Demand

New figures indicate that the Gippsland property market is gaining rapid momentum,…
Read more

Halloween at Home: Ideas for a Fun, Family-Friendly Fright Night

Once upon a time, Halloween in Australia was more of a passing…
Read more